行車刮泥機

XY行車式刮泥機適用于給排水工程中平流式沉淀池,將沉降在池底的污泥刮集至集泥槽,并將池面的浮渣撇向集渣槽。可根據用戶的要求設置浮渣刮板。按水流方向,可分為逆向刮泥逆向排渣和逆向刮泥同向排渣方式。刮泥機構在不刮泥回程時刮泥耙全部抬起。當回到刮泥的起始位置時,刮泥耙落下,這樣周而復始的工作。
產品特點
◆ 結構簡單、重量輕;
◆ 維護簡單、方便、運行費用低;
◆ 新型的傳動機構,不用聯軸器,對中方便、結構緊湊;
◆ 根據用戶需要,行走輪可為橡膠輪、尼龍輪、鋼輪。
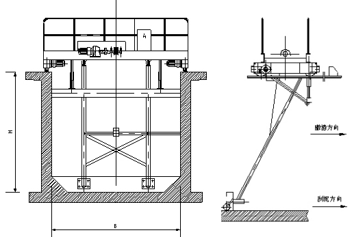
構造及工作過程
刮泥機由行車、刮泥耙、撇渣板、驅動裝置和自控柜等到組成。
1、兩槽同設一端:刮泥耙下降、撇渣板下降→刮泥機由池端(出水端)始點向泥、渣槽端行駛,將污泥、浮渣刮集輸送直至終點(進水端)→刮泥耙上提、撇渣板上提→刮泥機終端向始端換向行駛→抵達始端后停機或進行另一循環。
2、兩槽分設兩端:刮泥耙下降,撇渣板上提→刮泥機由出水端始點向泥槽端行駛.將污泥刮集輸送直至終點→刮泥耙上提而撇渣板下降→刮泥機換向行駛將浮渣撇向浮渣槽→抵達始端后停機或進行另 一循環。
結構示意圖



